Modulair huis DUO 70m²

Onze grootste en meest luxueuze modulaire woning. Perfect voor grote gezinnen die ruimte, comfort en alle moderne voorzieningen zoeken in een duurzame woning.

70m² woonoppervlak
2 slaapkamers
1 badkamer
8-14 weken bouwtijd

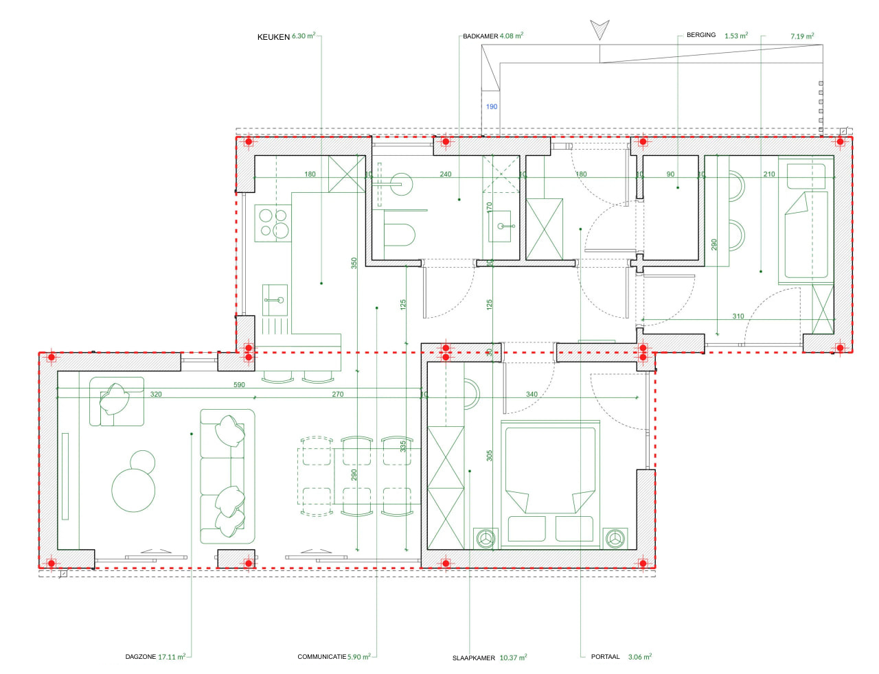
Plattegrond

Plattegrond DUO 70m²

Ruimte-indeling

Woonkamer 17m²
Slaapkamer 1 10m²
Slaapkamer 2 7m²
Badkamer 4m²
Keuken 6m²

Kenmerken

  • Ruime woonkamer met open keuken
  • Twee aparte slaapkamers
  • Een complete badkamer
  • Volledig ingerichte luxe keuken
  • Uitgebreide bergruimte
  • Grote ramen voor veel licht
  • Premium afwerking
  • Extra wooncomfort

Technische specificaties

Constructie

  • Fundering: Betonplaat of palen
  • Wanden: Houtskeletbouw met isolatie
  • Dak: Pannendak of plat dak
  • Vloeren: Betonvloer met isolatie

Isolatie

  • Wanden: Rc-waarde 4.5 m²K/W
  • Dak: Rc-waarde 6.0 m²K/W
  • Vloer: Rc-waarde 3.5 m²K/W
  • Glas: Triple glas HR+++

Installaties

  • Verwarming: LTV vloerverwarming
  • Ventilatie: WTW systeem
  • Elektra: 3-fase aansluiting
  • Internet: Glasvezel ready

Duurzaamheid

  • Energielabel: A+++
  • EPC: < 0.3
  • Materialen: FSC-gecertificeerd
  • Lifespan: 50+ jaar

Aanpassingsmogelijkheden

Exterieur

  • Gevelbekleding: Hout, steen, kunststof
  • Daktype: Pannendak, plat dak, sedum
  • Kozijnen: Hout, kunststof, aluminium
  • Terrassen & Balkons

Interieur

  • Vloeren: Laminaat, parket, tegels
  • Wanden: Stucwerk, behang, hout
  • Keuken: Volledig ingericht
  • Badkamer: Complete inrichting

Installaties

  • Verwarming: Vloerverwarming, radiatoren
  • Ventilatie: WTW, mechanische ventilatie
  • Elektra: Smart home, LED verlichting
  • Zonnepanelen: Complete installatie

Klaar om je droomhuis te realiseren?

Neem contact met ons op voor een gratis consultatie

Contact

Neem contact met ons op

Heeft u vragen of heeft u meer informatie nodig? Neem nu contact met ons op! Wij beantwoorden graag uw vragen, geven advies en helpen u de beste oplossingen te vinden die bij uw behoeften passen.

TELEFOON 070 21 7 70 23
E-MAILADRES info@diamantrenovatiebv.nl
ADRES Lindelaan 293, 2282 EW Rijswijk
WEBSITE diacasa.nl
×